chargement en cours
publicite

L'Atelier Mécanique de la Seyne-sur-Mer va devenir un ambitieux musée autour de la mer et de l'innovation

La Ville de la Seyne-sur-Mer a présenté le projet retenu pour la réhabilitation de l'Atelier Mécanique sur l'ancien site des chantiers navals: Un projet qui regroupera un musée immersif, un pôle de formation et d'innovation, ainsi qu'un hôtel, restaurant et spa. Voici à quoi pourrait ressembler "Immersion" en 2030.

Publié par Jean-Baptiste Fontana le 15/01/2026 - Mis à jour le 15/01/26 20:30
L'Atelier Mécanique de la Seyne sur Mer va devenir un ambitieux musée autour de la mer et de l'innovation

« Immersion », c’est le nom choisi pour un ambitieux projet de réhabilitation de l’ancien Atelier Mécanique des chantiers navals de la Seyne-sur-Mer, situé à quelques centaines de mètres du centre ville.

Le maire de la Seyne-sur-Mer, Jo Minniti, a présenté ce mercredi le projet sélectionné, composé d’un consortium de 18 acteurs privés. L’objectif principal d’ « Immersion » sera de "sensibiliser et former" le public aux enjeux de la mer et de la transition écologique, avec deux principaux volets : un musée immersif, mais aussi tout un pôle de recherche et d’innovation « d’envergure internationale » qui accueillera étudiants, chercheurs et entreprises.

Un hôtel 4*, un spa et un restaurant panoramique complèteront l'offre.

publicite

La structure du bâtiment des chantiers navals sera conservée 

Vue extérieure © Cabinet W-A

Le cœur du projet était de conserver l’âme et la structure de cet exceptionnel bâtiment, avec sa structure de « type Eiffel » et ses dimensions XXL. On oublie donc le projet de cinéma pour se reconcentrer sur son environnement proche : l’univers de la mer.

C’est l’architecte Jean-Michel Wilmotte qui a été retenu. Il a notamment signé le Stade Allianz Riviera à Nice, mais aussi le cinéma Artplexe à Marseille, le futur théâtre de l’Olivier à Istres ou celui du Forum à Fréjus.

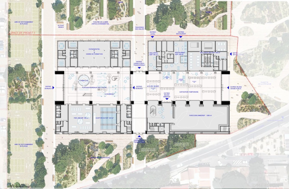
L’actuel bâtiment est composé de trois nefs. Les deux grandes vont être conservées et la troisième, plus petite, sera détruite et remplacée par des bâtiments modernes. A partir des images et plans présentés, la première des grandes nefs va devenir un immense hall ouvert, la seconde sera pour partie transformée en musée et pour l’autre en pôle d’innovation.

Les abords du bâtiment seront également aménagés, avec la création d’un jardin public comprenant un théâtre de verdure.

Ainsi, désormais, l’Atelier Mécanique deviendra « Immersion » et sera organisé en trois volets : un musée immersif, un pôle d’innovation et un espace bien être

Un musée immersif dédié à la mer

Vue intérieure de la grande halle © Cabinet W-A

Marseille en rêvait depuis des décennies, le grand musée dédié à la mer se fera finalement à La Seyne sur Mer. Sur 3400m² et plusieurs niveaux, « Immersion » sera un musée immersif pour découvrir et sensibiliser sur l’univers maritime, avec « un regard particulier sur les enjeux environnementaux et climatiques de la Méditerranée »

« La richesse de l’expérience proposée devra permettre de se déplacer jusqu’à la Seyne-sur-Mer » espèrent les promoteurs du projet.

L’objectif est d’attirer chaque année au moins 200 000 visiteurs par an pour la partie muséale, ce qui en ferait le premier musée de la Métropole Toulon Provence Méditerranée.

Parmi les pistes suggérées pour ce musée, on parle d’y exposer des sous-marins et engins scientifiques créés autour de Toulon, mais aussi un volet dédié à l’histoire des chantiers navals.

Grâce aux nouvelles technologies, ce musée du futur promet une plongée immersive particulièrement forte pour chaque visiteur.

Un pôle d’innovation d’envergure internationale

Le pôle innovations © Cabinet W-A

Près de la moitié de la surface (8000m²) sera dédiée à un pôle d’innovation composé de bureaux pouvant accueillir des startups, un campus de recherche et un centre de formation, mais aussi un fablab pour expérimenter des projets innovants ainsi qu’un auditorium.

L’objectif des porteurs de projet est bien d’y organiser des événements internationaux en lien avec l’univers maritime et la recherche.

Un hôtel, spa et restaurant roof top

Le plan du rez-de-chaussée, avec à gauche le pôle d'innovation, en haut à droite celui des loisirs et en bas à droite le musée

C’est le troisième volet, et probablement celui qui permettra aux porteurs de projet de trouver une rentabilité : l’espace « bien être » s’organise autour des services ouverts à tous :

- un hôtel de 90 chambres au standard 4 étoiles accompagné d’un spa.

- Au dernier étage, un restaurant avec un roof top panoramique sera également construit.

Tout cet espace sera créé de toute pièce, en lieu et place de l’actuelle « petite » nef vouée à être démolie.

Une partie à flot également

Vue extérieure © Cabinet W-A

Le projet « Immersion » présenté cette semaine ne concerne que la réhabilitation de l’Atelier Mécanique. Mais, un tel projet autour de la thématique de la mer ne peut évidemment pas se cantonner à rester à terre.

A quelques mètres de là, la Métropole Toulon Provence Méditerranée va aménager la partie littorale. Si un port de plaisance est toujours prévu pour émerger à proximité, il restera environ un linéaire d’environ 400 mètres devant le bâtiment.

Un accueil de grande plaisance est envisagé, mais un lien sera certainement fait avec le pôle « Immersion »: « On pourra accueillir des bateaux scientifiques, des navires de recherche. L’objectif est que le grand public puisse naviguer, ou au moins, prolonger ce qui sera présenté dans le site » espère Cyprien FONVIELLE, le directeur de Neede, l’association qui devrait s’occuper du musée.

Un modèle économique financé exclusivement par le privé...

La transformation de l’Atelier Mécanique en ce pôle « Immersion » est évalué à 100 millions d’euros TTC. Un budget particulièrement important, lié notamment aux travaux de dépollution, de démolition de la petite nef, de réhabilitation de ces deux nefs historiques et bien sûr de la construction des nouveaux bâtiments et aménagements.

Là où de grands ouvrages tels que le Mucem à Marseille où Océanolopolis à Brest ont été portés par des acteurs publics, le financement du projet porte exclusivement sur des investisseurs privés ou para-publics : En premier lieu, la société d’économie mixte Sagem, l’aménageur spécialiste des projets d’aménagements publics dans le Var, associé au groupes BT Immo, Spirit et Energys.

Le groupe international Fortil, historiquement basé à La Seyne sera le mécène pour financer les travaux de la partie muséale via son fonds de dotation. Elle représente environ un quart du budget total de la réhabilitation de l’Atelier Mécanique.

La composition du groupement lauréat

Une fois lancé, ce musée devra néanmoins s’autofinancer. L’entrée y sera probablement payante. C’est l’association Neede qui devrait s’occuper de l’exploitation du musée. La création d’une structure de type groupement d’intérêt public (GIP) est également envisagée car elle permettrait d’impliquer des acteurs institutionnels tels que les universités, la Marine Nationale ou encore l’Ifremer dans sa programmation scientifique.

... mais qui reste la propriété de la ville

La ville restera propriétaire des murs via un bail emphytéotique de longue durée et ne participera pas financièrement aux travaux, si ce n’est pour aménager les espaces extérieurs et accès au site.

Le projet dans sa globalité table sur 3,5 à 4 millions d’euros de retombées économiques, 200 emplois directs et indirects, et surtout une portée internationale au travers des rencontres, expositions et grâce au pôle d’innovation intégré.

L’hôtel, avec ses 90 chambres, sera ainsi un atout important pour accueillir des chercheurs et scientifiques dans le pôle d’innovations.

Un projet qui reste suspendu aux échéances électorales

Le calendrier prévisionnel du projet

Après un premier projet avorté, un nouvel appel à projet avait été lancé en 2024 par l’ancienne maire Nathalie Bicais. En ce début 2026, et à quelques semaines des élections municipales, nous sommes au cœur d’un long processus administratif. Le lauréat et le projet sont donc sélectionnés, mais il va falloir officialiser cela en conseil municipal, probablement après les élections. Suivra ensuite un processus de quatre ans, avec des études d’impacts, dépôt du permis de construire, purge d’éventuels recours puis le début des travaux en 2028 pour une livraison espérée fin 2030.

En cas de changement de majorité, le projet pourrait être simplement amendé ou revu en profondeur.

En poursuivant votre navigation sur ce site, vous acceptez l'utilisation de cookies.